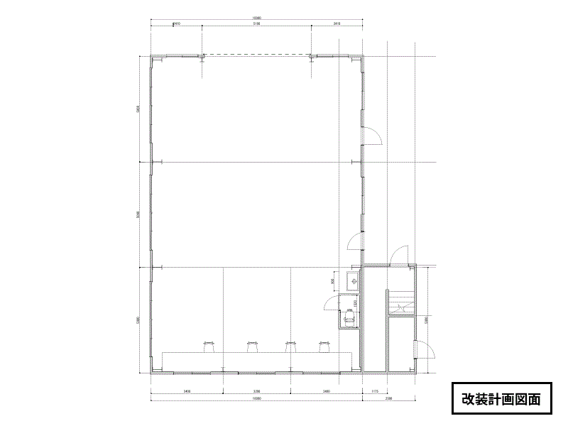
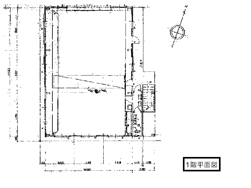
各画像をクリックすると拡大図面を見ることが出来ます。
本図面は概略図面です。寸法,方位、間取りその他現物とは多少の差異がありますので物件をよくお確かめ下さい。
図面と現況に相違がある場合は現況優先と致します。


1枚目

2枚目

3枚目

閉じる